- [神戸・西宮 学生マンション情報] TOP
 - 賃貸物件を探す
 - 西宮市南昭和町(阪急神戸線西宮北口)のマンション物件詳細
 
賃貸物件を探す
西宮市南昭和町(阪急神戸線西宮北口)のマンション物件詳細
![]()  | 
								![]()  | 
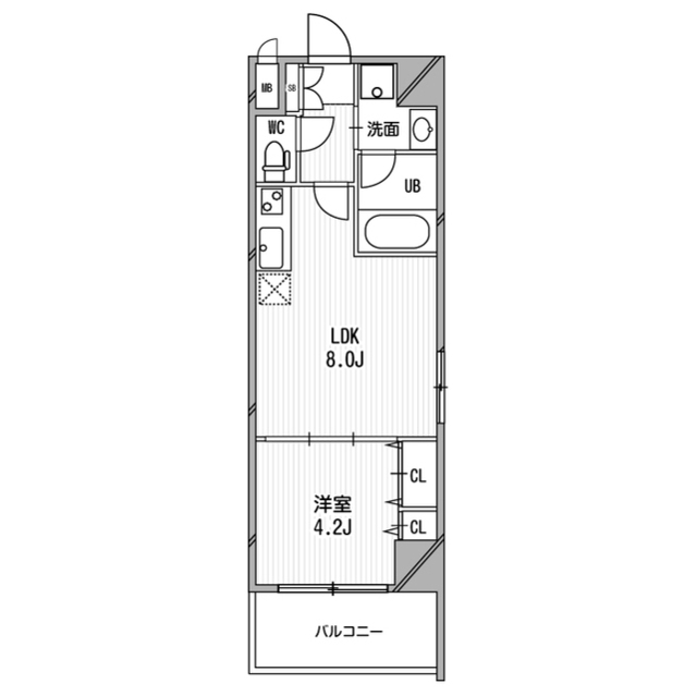
							||||
| その他の写真 | ![]()  | 
								![]()  | 
								![]()  | 
								![]()  | 
								※画像をクリックすると
									 拡大表示します。  | 
							
|---|---|---|---|---|---|
| ホームメイトFC三宮店
									 TEL.078-334-2960  | 
								物件番号 | 100961836052 | 
|---|---|---|













