- [神戸・西宮 学生マンション情報] TOP
- 賃貸物件を探す
- 神戸市北区有野町二郎(神戸電鉄三田線田尾寺)のアパート物件詳細
賃貸物件を探す
神戸市北区有野町二郎(神戸電鉄三田線田尾寺)のアパート物件詳細
![]() |
![]() |
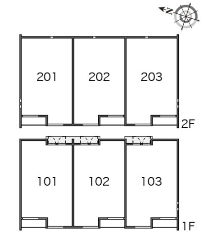
||||
| その他の写真 | ![]() |
![]() |
![]() |
![]() |
※画像をクリックすると
拡大表示します。 |
|---|---|---|---|---|---|
![]() |
![]() |
![]() |
![]() |
||
| ホームメイトFC三宮店
TEL.078-334-2960 |
物件番号 | 100961839612 |
|---|---|---|

















