賃貸物件を探す

神戸市中央区布引町(神戸市営地下鉄線新神戸)のマンション物件詳細

物件番号 100961839620
家賃
105,120円
共益費
9,880円
交通 ・神戸市営地下鉄線新神戸より徒歩1分
・神戸地下鉄北神線新神戸より徒歩1分
所在地 神戸市中央区布引町1丁目1番13号 賃貸物件のMAP
敷金
礼金
保証金
解約引
契約一時金
償却費
取引態様
入居時期
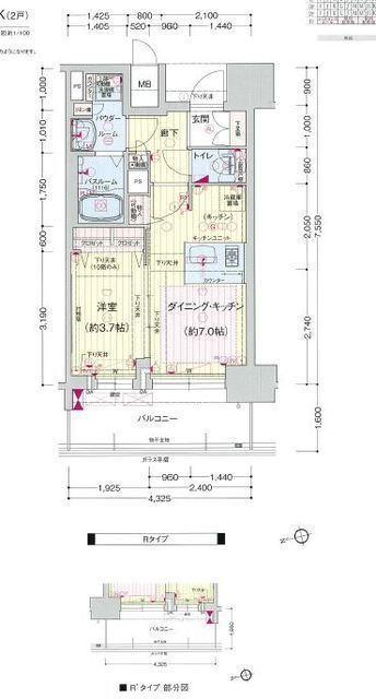
間取
専有面積
駐車場
部屋の向き
種別
完成年月
建物構造
-
13万円
-
-
-
-
一般
入居中
1DK
30.76m2

西向き
マンション
2017年1月
鉄筋コンクリート
14階建/10階
その他費用
設備・条件
給湯追い焚き給湯浴室乾燥機ウォッシュレットエアコン床暖房モニタ付インターホンオートロック宅配ボックスエレベータBSCATV

設備・条件アイコンの説明を見る

コメント プレサポ24990円(月額) 「プレサンスジェネ新神戸ステーションフロント」:神戸市中央区エリアの新居にピッタリ。宅配業者と接触したくないと思っている人でも宅配ボックスがあるので接触せずに荷物を受け取ることができるので安心です。床暖房付きです。お部屋探しならアパマン住宅。貴方様のお問い合せを、スタッフ一同お待ちしております。078-334-2960またはapaman-w@apaman-web.co.jpをご利用下さい。
神戸市中央区布引町(神戸市営地下鉄線新神戸)のマンション賃貸物件 間取画像 神戸市中央区布引町(神戸市営地下鉄線新神戸)のマンション賃貸物件 外観写真
その他の写真 ※画像をクリックすると
拡大表示します。
この物件のお問い合わせ先
ホームメイトFC三宮店
TEL.078-334-2960
物件番号 100961839620
免許番号:兵庫県知事(9)第9090号
会社名:アパマン住宅神戸三宮本店
所在地:兵庫県神戸市中央区三宮町1丁目8番1号 さんプラザ 112号室 この店のMAP
Tel:078-334-2960  FAX:078-334-2962
※お問い合わせの際は、物件番号や「神戸・西宮 学生マンション情報のホームページを見て」とお伝えいただくと対応がスムーズになります。

この物件について問い合わせる

この物件情報をメールやケータイに送る
このページのトップへ移動