- [神戸・西宮 学生マンション情報] TOP
- 賃貸物件を探す
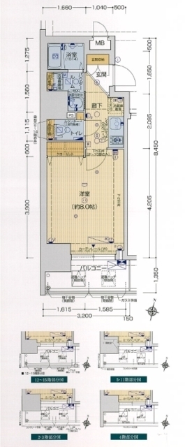
- 神戸市中央区御幸通(神戸市営地下鉄海岸線三宮・花時計前)のマンション物件詳細
賃貸物件を探す
神戸市中央区御幸通(神戸市営地下鉄海岸線三宮・花時計前)のマンション物件詳細
![]() |
![]() |
||||
| その他の写真 | ![]() |
※画像をクリックすると
拡大表示します。 |
|||
|---|---|---|---|---|---|
| ホームメイトFC三宮店
TEL.078-334-2960 |
物件番号 | 100961840615 |
|---|---|---|










