賃貸物件を探す

神戸市中央区御幸通(阪神本線神戸三宮)のマンション物件詳細

物件番号 100961840921
家賃
76,410円
共益費
8,590円
交通 ・阪神本線神戸三宮より徒歩7分
・神戸市営地下鉄海岸線三宮・花時計前より徒歩7分
所在地 神戸市中央区御幸通2丁目2番3号 賃貸物件のMAP
敷金
礼金
保証金
解約引
契約一時金
償却費
取引態様
入居時期
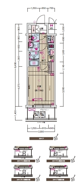
間取
専有面積
駐車場
部屋の向き
種別
完成年月
建物構造
-
10万円
-
-
-
-
一般
入居中
1K
23.52m2

南東向き
マンション
2018年3月
鉄筋コンクリート
15階建/8階
その他費用
設備・条件
給湯浴室乾燥機ウォッシュレットエアコンモニタ付インターホンオートロック宅配ボックスエレベータBSCATV

設備・条件アイコンの説明を見る

コメント プレサポ24990円(月額) 神戸三宮駅周辺への引っ越しをお考えなら「プレサンス三宮ポルト」。留守中に注文した商品が届くので、配送時間を気にせず注文ができる宅配ボックスを共用部に備えております。築7年の物件で充実した毎日を過ごしませんか。アパマン住宅の信頼できるスタッフが住まい探しをサポート致します。まずは078-334-2960へご連絡ください。
神戸市中央区御幸通(阪神本線神戸三宮)のマンション賃貸物件 間取画像 神戸市中央区御幸通(阪神本線神戸三宮)のマンション賃貸物件 外観写真
その他の写真 ※画像をクリックすると
拡大表示します。
この物件のお問い合わせ先
ホームメイトFC三宮店
TEL.078-334-2960
物件番号 100961840921
免許番号:兵庫県知事(9)第9090号
会社名:アパマン住宅神戸三宮本店
所在地:兵庫県神戸市中央区三宮町1丁目8番1号 さんプラザ 112号室 この店のMAP
Tel:078-334-2960  FAX:078-334-2962
※お問い合わせの際は、物件番号や「神戸・西宮 学生マンション情報のホームページを見て」とお伝えいただくと対応がスムーズになります。

この物件について問い合わせる

この物件情報をメールやケータイに送る
このページのトップへ移動