- [神戸・西宮 学生マンション情報] TOP
- 賃貸物件を探す
- 西宮市生瀬東町(阪急宝塚線宝塚)のアパート物件詳細
賃貸物件を探す
西宮市生瀬東町(阪急宝塚線宝塚)のアパート物件詳細
![]() |
![]() |
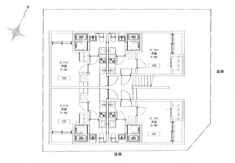
||||
| その他の写真 | ![]() |
![]() |
![]() |
![]() |
※画像をクリックすると
拡大表示します。 |
|---|---|---|---|---|---|
![]() |
![]() |
![]() |
|||
| ホームメイトFC三宮店
TEL.078-334-2960 |
物件番号 | 100961841463 |
|---|---|---|
















