賃貸物件を探す

神戸市中央区筒井町(阪急神戸線春日野道)のマンション物件詳細

物件番号 100961843195
家賃
71,410円
共益費
8,590円
交通 ・阪急神戸線春日野道より徒歩2分
・阪神本線春日野道より徒歩5分
所在地 神戸市中央区筒井町3丁目12番22号 賃貸物件のMAP
敷金
礼金
保証金
解約引
契約一時金
償却費
取引態様
入居時期
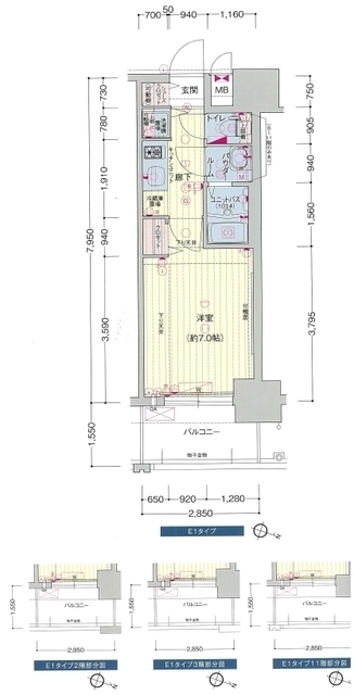
間取
専有面積
駐車場
部屋の向き
種別
完成年月
建物構造
-
10万円
-
-
-
-
一般
入居中
1K
22.65m2

東向き
マンション
2015年6月
鉄筋コンクリート
14階建/4階
その他費用
設備・条件
給湯浴室乾燥機ウォッシュレットエアコンモニタ付インターホンオートロック宅配ボックスエレベータBSCATV

設備・条件アイコンの説明を見る

コメント プレサポ24990円(月額) 新生活を失敗せず、スタートさせたいならこちらの「プレサンス三宮東フィール」はいかがでしょうか。セキュリティ面は、TVインターホン・オートロックなどを設置しているので安全面でも優れております。2015年築の物件です。春日野道周辺でお住まいを見つけたい方、アパマン住宅に一度ご連絡下さい。連絡先は078-334-2960からお待ちしております。
神戸市中央区筒井町(阪急神戸線春日野道)のマンション賃貸物件 間取画像 神戸市中央区筒井町(阪急神戸線春日野道)のマンション賃貸物件 外観写真
その他の写真 ※画像をクリックすると
拡大表示します。
この物件のお問い合わせ先
ホームメイトFC三宮店
TEL.078-334-2960
物件番号 100961843195
免許番号:兵庫県知事(9)第9090号
会社名:アパマン住宅神戸三宮本店
所在地:兵庫県神戸市中央区三宮町1丁目8番1号 さんプラザ 112号室 この店のMAP
Tel:078-334-2960  FAX:078-334-2962
※お問い合わせの際は、物件番号や「神戸・西宮 学生マンション情報のホームページを見て」とお伝えいただくと対応がスムーズになります。

この物件について問い合わせる

この物件情報をメールやケータイに送る
このページのトップへ移動