- [神戸・西宮 学生マンション情報] TOP
- 賃貸物件を探す
- 神戸市中央区八雲通(阪急神戸線春日野道)のマンション物件詳細
賃貸物件を探す
神戸市中央区八雲通(阪急神戸線春日野道)のマンション物件詳細
![]() |
![]() |
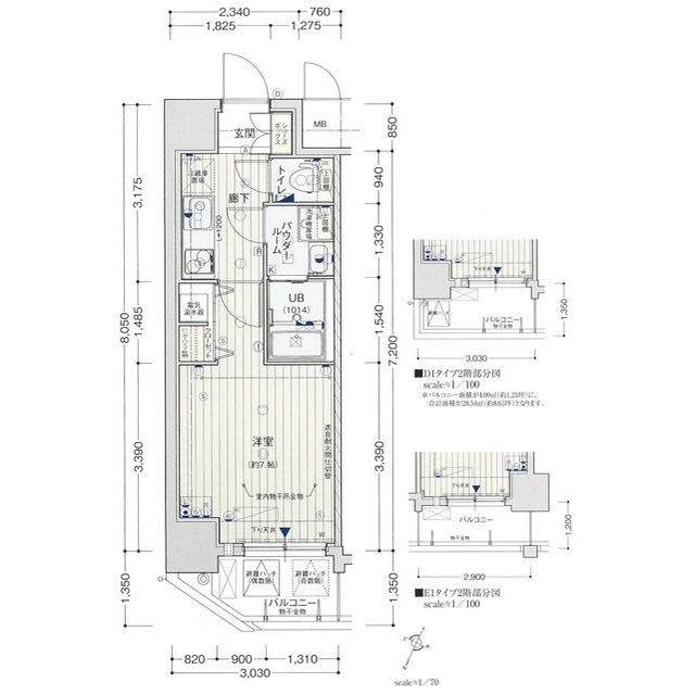
||||
| その他の写真 | ![]() |
![]() |
![]() |
![]() |
※画像をクリックすると
拡大表示します。 |
|---|---|---|---|---|---|
| ホームメイトFC三宮店
TEL.078-334-2960 |
物件番号 | 100961847564 |
|---|---|---|













